Mieszkanie na sprzedaż Ruda Śląska, Halemba

2 pokoje
62.00 m²
8 548,39 zł/m2
1 piętro
DOMI-MS-68
Oblicz ratę kredytu

530 000 zł

Mieszkanie na sprzedaż
Oferta na wyłączność

Szczegóły oferty

Symbol oferty DOMI-MS-68
Powierzchnia 62,00 m²
Liczba pokoi 2
Rodzaj budynku apartamentowiec
Technologia budowlana pustak ceramiczny
Standard
Opłaty wg liczników gaz
Piętro 1
Liczba pięter w budynku 1
Stan lokalu Do wykończenia
Okna nowe PCV
Balkon brak
Widok na inne budynki
Gaz w trakcie prowadzenia
Woda jest
Dojazd asfalt
Otoczenie zabudowa wielorodzinna
Ogrzewanie własne gazowe - kocioł 2-funkcyjny
Anna Kaczmarczyk-Jarmułowicz

Anna Kaczmarczyk-Jarmułowicz

Specjalista ds. nieruchomości

Napisz wiadomość 20 Ofert

Opis nieruchomości

KUPUJĄCY NIE PŁACI PROWIZJI DLA BIURA!

Przedstawiam Państwu do sprzedaży  apartament o pow. 62 m2 z balkonem mieszczący się na pograniczu Rudy Śląskiej- Halemby z Borową Wsią.

W cenie apartamentu miejsce parkingowe!

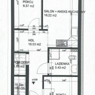
UKŁAD POMIESZCZEŃ:

  • salon z aneksem kuchennym z wyjściem na balkon - 16,22 m2
  • I pokój  – 9,37 m2
  • II pokój – 14,27 m2
  • łazienka z WC - 5,43 m2
  • przedpokój z miejscem na garderobę – 10,89 m2

STANDARD WYKOŃCZENIA:
  • wylewki maszynowe
  • tynki gipsowe
  • instalacje wod-kan, elektryczna, gazowa
  • ogrzewanie gazowe podłogowe
  • stolarkę okienna PCV 3-szybowa
  • stolarka drzwiowa stalowa
  • pustak ceramiczny szlifowany
  • ocieplenie styropianem 20 cm
  • pokrycie dachowe- membrana
  • oddzielone ogródki
  • wybrukowane miejsce parkingowe
  • wyprowadzona instalacja pod fotowoltaikę

TERMIN ODDANIA:
Planowane zakończenie inwestycji wraz z oddaniem lokali- wrzesień 2026r.

ŚWIETNA LOKALIZACJA!
Apartamentowiec znajduje się w jednej z najbardziej pożądanych lokalizacji, która stanowi połączenie strefy zapewniającej mieszkańcom spokój i ciszę, a jednocześnie bardzo dobrą dostępność komunikacyjną i infrastrukturę miejskich udogodnień.
W pobliżu przystanki komunikacji miejskiej, sklepy, szkoły, przychodnie, szybki dojazd do autostrady A4 (5 km) – świetne połączenie z miastami ościennymi; Gliwice, Zabrze, Katowice.

CENA: 530.000 zł brutto
Kupujący zwolniony z podatku PCC 2%
W ofercie również opcja na parterze z ogródkiem - cena 570.000 zł.

BEZPŁATNIE POMAGAMY W UZYSKANIU KREDYTU HIPOTECZNEGO!

Kontakt: Anna Kaczmarczyk - Jarmułowicz tel. 695-777-810
Zapraszam serdecznie do kontaktu oraz spotkania!

Kalkulatory

Kalkulator kredytowy

Wysokość raty

PLN
%

Kalkulator kosztów

Podatek od czynności cywilno-prawnych

Taksa notarialna
(opłata notarialna)

Wniosek o wpis do KW

VAT od prowizji
agencji nieruchomości

VAT od taksy notarialnej
(opłaty notarialnej)

Prowizja agencji nieruchomości

Wypisy aktu notarialnego

Razem

Uwaga: mogą wystąpić dodatkowe opłaty za założenie księgi wieczystej oraz ustanowienie hipoteki.

PLN
PLN
PLN
PLN
PLN
PLN
%
PLN

Podobne oferty

Oferta na wyłączność

Mieszkanie na sprzedaż

Ruda Śląska, Halemba

2 pokoje 61 m2 9 344,26 zł/m2
Oferta na wyłączność

Specjalista ds. nieruchomości

Proszę wprowadzić poprawne imię i nazwisko
Proszę wprowadzić poprawny numer telefonu
Proszę wprowadzić poprawny adres e-mail
Proszę zaznaczyć wymagane zgody
Rozwiąż równanie:
26 6
Niepoprawny wynik