Mieszkanie na sprzedaż Gliwice, Sośnica

3 pokoje
57.00 m²
7 982,46 zł/m2
2 piętro
DOMI-MS-61
Oblicz ratę kredytu

455 000 zł

Mieszkanie na sprzedaż
Oferta na wyłączność

Szczegóły oferty

Symbol oferty DOMI-MS-61
Powierzchnia 57,00 m²
Powierzchnia balkonów/tarasów 6,73 m²
Liczba pokoi 3
Rodzaj budynku villa
Technologia budowlana pustak ceramiczny
Standard
Opłaty wg liczników CO
Piętro 2
Liczba pięter w budynku 3
Stan lokalu Do wykończenia
Okna nowe PCV
Instalacje nowe
Balkon duży
Liczba balkonów 1
Rok budowy 2025
Widok na inne budynki
Gaz brak
Woda ciepła - miejska
Dojazd asfalt
Otoczenie zabudowa wielorodzinna
Ogrzewanie miejskie
Umeblowanie puste
Odległość do komunikacji publicznej [m] 280 m
Odl. do sklepu [m] 250 m
Odl. do szkoły [m] 750 m
Odl. do przedszkola [m] 550 m
Usytuowanie dwustronne
Certyfikat energetyczny
Wskaźnik EP kwh/(m2 rok)
122.7
122.7
122.7
122.7
122.7
122.7
122.7
122.7
Wskaźnik EP: 122.7
kwh/(m2rok)
Wskaźnik EK: 92,65
kwh/(m2rok)
Wskaźnik EU: 63,17
kwh/(m2rok)
Ewelina Ciołczyk

Ewelina Ciołczyk

Specjalista ds. nieruchomości

Napisz wiadomość 4 Ofert

Opis nieruchomości

Przedstawiam Państwu do sprzedaży przestronne 3 pokojowe mieszkanie  o pow. 57,0 m2, mieszczące się w Gliwicach - dzielnicy Sośnica przy ul. Ks. dr. Antoniego Korczoka w nowo wybudowanej willi.

Lokal znajduje się na 2 piętrze 3-piętrowego apartamentowca. To gotowe mieszkanie czeka tylko na Twoje wykończenie i możesz zamieszkać bez dodatkowych ukrytych kosztów. Budynek mieści się na działce o powierzchni 819 m2, usytuowanej w otoczeniu niskiej zabudowy wielorodzinnej oraz domów jednorodzinnych.
Willa składa się z 7 mieszkań zaprojektowanych z myślą o funkcjonalności i wygodzie mieszkańców.
W cenie miejsce postojowe znajdujące się na parkingu przed budynkiem. Teren ogrodzony, a wjazd zabezpieczony szlabanem.

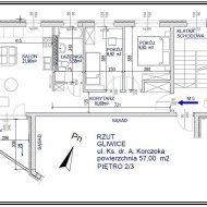
UKŁAD POMIESZCZEŃ
- duży pokój dzienny z aneksem kuchennym - 21,96 m2
- sypialnia/pokój - 8,92 m2
- sypialnia/pokój - 9,85 m2
- łazienka razem z WC - 5,38 m2
- przedpokój/korytarz - 10,68 m2
Do mieszkania przynależy balkon o powierzchni 6,73 m2

Budynki wybudowane z najwyższej jakości materiałów: pustak ceramiczny, elewacja ocieplona styropianem gr. 15cm, kryta tynkiem.

Ogrzewanie miejskie z węzłem cieplnym zlokalizowanym w budynku. 
Ciepła woda miejska.
Koszty utrzymania mieszkania: zarządca wraz z opłatą stałą za ogrzewanie 108 zł, eksploatacja 1,50 zł/m2. Zaliczka na ogrzewanie 6,80 zł/m2.

LOKALIZACJA
Inwestycję charakteryzuje świetna lokalizacja - okolica cicha i spokojna. Bardzo dobrze rozwinięta infrastruktura miejska.
Dobra komunikacja z miastami sąsiednimi: DTŚ - 1,7 km, DK - 88 -2,5 km, zjazd na A4 - 2,5 km
* w pobliżu sklepy i niezbędna infrastruktura, Lidl 250 m
* placówki edukacyjne: szkoła podstawowa 750 m, przedszkole 550 m
* przystanki komunikacji miejskiej - autobus: 280 m

CENA: 455.000 zł brutto ( mieszkanie + miejsce postojowe )

Zapraszam serdecznie do kontaktu oraz spotkania!
Ewelina Ciołczyk, tel. 727 677 039

Lokalizacja nieruchomości

Kalkulatory

Kalkulator kredytowy

Wysokość raty

PLN
%

Kalkulator kosztów

Taksa notarialna
(opłata notarialna)

Wniosek o wpis do KW

VAT od prowizji
agencji nieruchomości

VAT od taksy notarialnej
(opłaty notarialnej)

Prowizja agencji nieruchomości

Wypisy aktu notarialnego

Razem

Uwaga: mogą wystąpić dodatkowe opłaty za założenie księgi wieczystej oraz ustanowienie hipoteki.

PLN
PLN
PLN
PLN
PLN
%
PLN

Podobne oferty

Oferta na wyłączność

Mieszkanie na sprzedaż

Gliwice, Sośnica

2 pokoje 47 m2 7 984,55 zł/m2
Oferta na wyłączność

Specjalista ds. nieruchomości

Proszę wprowadzić poprawne imię i nazwisko
Proszę wprowadzić poprawny numer telefonu
Proszę wprowadzić poprawny adres e-mail
Proszę zaznaczyć wymagane zgody
Rozwiąż równanie:
29 7
Niepoprawny wynik