Mieszkanie na sprzedaż Ruda Śląska, Kochłowice

3 pokoje
58.01 m²
5 257,71 zł/m2
parter
DOMI-MS-49
Oblicz ratę kredytu

305 000 zł

Mieszkanie na sprzedaż
Oferta na wyłączność

Szczegóły oferty

Symbol oferty DOMI-MS-49
Powierzchnia 58,01 m²
Powierzchnia użytkowa [m2] 58,01 m²
Liczba pokoi 3
Liczba sypialni 2
Rodzaj budynku kamienica
Technologia budowlana cegła
Standard
Opłaty wg liczników prąd
Piętro parter
Liczba pięter w budynku 2
Garaż garaż
Stan lokalu Do odświeżenia
Okna PCV
Instalacje wymienione
Balkon brak
Widok na inne budynki
Gaz brak
Woda tak - własna
Dojazd asfalt
Ogrzewanie własne elektryczne
Usytuowanie jednostronne
Pomieszczenia
Typ łazienki razem z wc
Anastazja Skalska

Anastazja Skalska

Manager
Nr licencji: 27544

Napisz wiadomość 18 Ofert

Opis nieruchomości

Przedstawiam Państwu do sprzedaży świetne 3-pokojowe mieszkanie o pow. 58m2, mieszczące się w świetnej lokalizacji: Rudzie Śląskiej - dzielnicy Kochłowice przy ul. Wyzwolenia. 

Lokal znajduje się na parterze w wyremontowanym i ocieplonym budynku. Klatka schodowa odnowiona.
Do dyspozycji właścicieli wybrukowany parking- każde mieszkanie ma zapewnione miejsce parkingowe. Teren ogrodzony, zamykany bramą na pilota, co zapewnia bezpieczeństwo i komfort mieszkańców. 
Dodatkowo do korzystania wspólny ogródek! Idealne miejsce na odpoczynek, grillowanie czy zabawę z dziećmi.


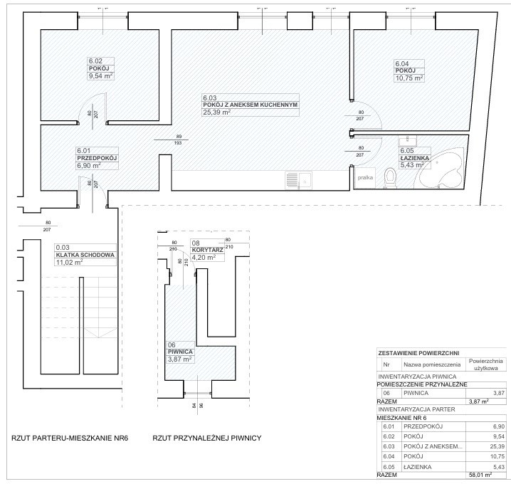
Lokal składa się z: 

  • dużego salonu połączonego z kuchnią, 
  • dwóch ustawnych sypialni,
  • łazienki z WC,
  • przedpokoju z garderobą.
Do mieszkania przynależy piwnica o powierzchni 3,87m2.

W galerii zamieszczony rzut lokalu wraz z piwnicą.


W mieszkaniu wykonane wylewki, gładzie, położono płyty gipsowe, na podłogach kafle oraz panele. Łazienka w całości wykafelkowana. Kuchnia z zabudową oraz wyposażeniem: lodówką, kuchenką wraz z piekarnikiem.

Całe wyposażenie widoczne na zdjęciach w cenie!


Budynek po remoncie: ocieplony dach, elewacja, stropy; wymienione instalacje elektryczna i wod-kan; wymienione okna.

Ogrzewanie-> elektryczne - nowoczesne grzejniki grafenowe
Ciepła woda-> ogrzewana przy pomocy przepływowego ogrzewacza elektrycznego
Okna-> PCV

Świetna lokalizacja! W zasięgu ręki pełna infrastruktura niezbędna do wygodnego życia. W pobliżu znajdują się sklepy, szkoły, przystanki komunikacji miejskiej.
Łatwy dojazd do pozostałych dzielnic Rudy Śląskiej oraz miast sąsiadujących, dzięki bliskiej odległości autostrady A4.


CENA: 305.000 zł 
(do negocjacji)

Zapraszam serdecznie do kontaktu oraz spotkania!
Anastazja Skalska, tel. 667 715 222

Lokalizacja nieruchomości

Kalkulatory

Kalkulator kredytowy

Wysokość raty

PLN
%

Kalkulator kosztów

Podatek od czynności cywilno-prawnych

Taksa notarialna
(opłata notarialna)

Wniosek o wpis do KW

VAT od prowizji
agencji nieruchomości

VAT od taksy notarialnej
(opłaty notarialnej)

Prowizja agencji nieruchomości

Wypisy aktu notarialnego

Razem

Uwaga: mogą wystąpić dodatkowe opłaty za założenie księgi wieczystej oraz ustanowienie hipoteki.

PLN
PLN
PLN
PLN
PLN
PLN
%
PLN

Podobne oferty

Mieszkanie na sprzedaż

Ruda Śląska, Kochłowice

3 pokoje 36 m2 7 468,88 zł/m2

Mieszkanie na sprzedaż

Ruda Śląska, Kochłowice

3 pokoje 33 m2 7 451,34 zł/m2

Mieszkanie na sprzedaż

Ruda Śląska, Kochłowice

2 pokoje 43 m2 9 012,17 zł/m2

Manager

Proszę wprowadzić poprawne imię i nazwisko
Proszę wprowadzić poprawny numer telefonu
Proszę wprowadzić poprawny adres e-mail
Proszę zaznaczyć wymagane zgody
Rozwiąż równanie:
30 6
Niepoprawny wynik