4 pokoje
239.31 m²
3 551,88 zł/m2
DOMI-DS-69
Oblicz ratę kredytu

850 000 zł

Dom na sprzedaż
Oferta na wyłączność

Szczegóły oferty

Symbol oferty DOMI-DS-69
Powierzchnia 239,31 m²
Powierzchnia użytkowa [m2] 239,31 m²
Powierzchnia działki [m2] 968 m²
Liczba pokoi 4
Rodzaj domu wolnostojący
Technologia budowlana pustak ceramiczny
Standard
Wymiary działki 22 x 43 m
Garaż na dwa samochody
Okna PCV
Instalacje nowe
Balkon taras
Zagosp. działki niezagospodarowana
Ukształtowanie działki płaska
Kształt działki prostokat
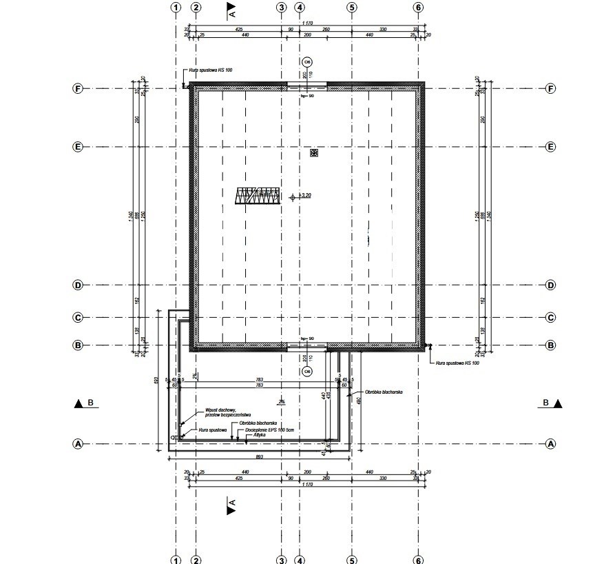
Pokrycie dachu dachówka betonowa
Stan budynku do wykończenia
Ogrodzenie działki siatka
Gaz w ulicy
Woda jest
Dojazd asfalt
Otoczenie zabudowa jednorodzinna
Ogrzewanie pompa ciepła
Tarasy taras
Prąd jest
Kanalizacja miejska
Anastazja Skalska

Anastazja Skalska

Manager
Nr licencji: 27544

Napisz wiadomość 18 Ofert

Opis nieruchomości

Przedstawiam Państwu do sprzedaży wolnostojący dom o pow. 239 m2, położony na działce o pow. 938 m2 w Lędzinach przy ul. Zacisze.

Nieruchomość znajduje się w jednej z najbardziej pożądanych lokalizacji, która stanowi połączenie strefy podmiejskiej zapewniającą mieszkańcom spokój i ciszę, a jednocześnie bardzo dobrą dostępność komunikacyjną i infrastrukturę miejskich udogodnień. 

Okolica o wyjątkowym klimacie- zielona i bezpieczna, z niską zabudową jednorodzinną- idealna dla rodzin, par i osób ceniących prywatność. 

Opis budynku

Dom jednorodzinny jednopiętrowy, z poddaszem użytkowym, niepodpiwniczony.
Posiada duży garaż dwustanowiskowy.

Budynek został zaprojektowany w energooszczędnej technologii i wykonany z wysokiej jakości materiałów, co gwarantuje komfort, trwałość i niskie koszty utrzymania.

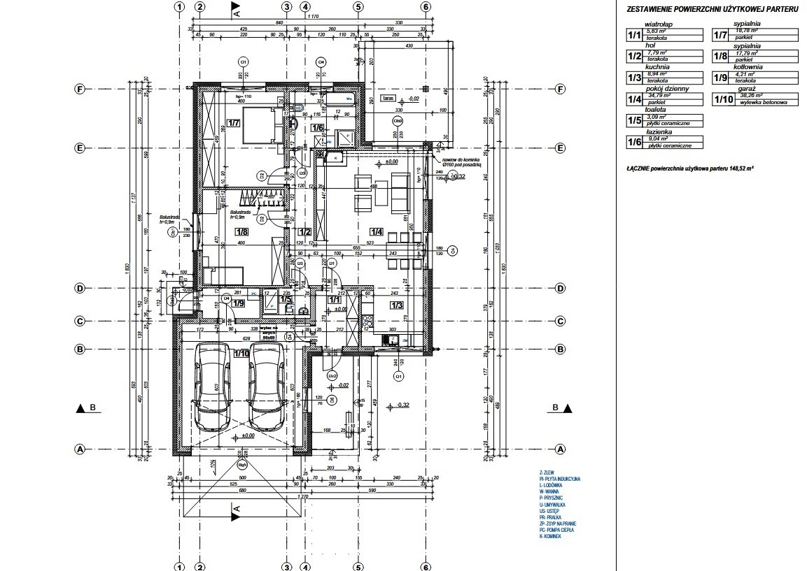
Układ pomieszczeń: 
Parter:
  • wiatrołap (5,83m2)
  • hol (7,79m2)
  • kuchnia (8,94m2)
  • pokój dzienny (34,79m2)
  • toaleta (3,09m2)
  • łazienka (9,04m2)
  • sypialnia (18,78m2)
  • pokój (17,79m2)
  • pom. techniczne (4,21m2)
  • garaż dwustanowiskowy (38,26m2)

Poddasze to duża wolna przestrzeń o powierzchni użytkowej 90,79m2 (powierzchnia po podłodze to 133,19m2), którą można zagospodarować według własnej wizji. Przestrzeń można podzielić na mniejsze pomieszczenia, jest również miejsce przygotowane pod łazienkę. 
Posiada dwa wejścia- z części mieszkalnej- pokoju; oraz dodatkowe wejście z garażu (idealne rozwiązanie w przypadku wydzielenia części gospodarczej)


Działka:
  • o regularnym kształcie
  • prostokątna
  • teren płaski
  • ogrodzona siatką
Media i instalacje: 
Dom zaprojektowany jest pod ogrzewanie przy pomocy pompy ciepła.
  • instalacja elektryczna rozprowadzona w budynku, 
  • wykonana instalacja wentylacji mechanicznej (rekuperacja)
  • kanalizacja miejska oraz woda doprowadzona (należy podpisać umowę z wodociągami),
  • przygotowane miejsce na zbiornik na deszczówkę,
  • w salonie przygotowane miejsce pod kominek z płaszczem wodnym,
  • w ulicy dodatkowo znajduje się gaz, który również można doprowadzić do budynku.
Standard wykonania:
  • stan surowy zamknięty bez zamontowanych drzwi zewnętrznych oraz bramy garażowej,
  • okna trzyszybowe OKNOPLAST,
  • zamontowane rolety elektryczne we wszystkich oknach,
  • dach dwuspadowy pokryty dachówką betonową,
  • ściany z pustaka ceramicznego,
  • fundamenty dodatkowo wzmocnione.

Dlaczego warto?

Ten dom łączy w sobie nowoczesność, energooszczędność i wygodę.
Znajduje się w pięknej, sielankowej lokalizacji otoczonej zielenią.

Jest to idealna opcja dla osób szukających przestrzeni, spokoju i natury, nie rezygnując przy tym z doskonałej komunikacji z miastem.


CENA: 850.000 zł

Zapraszam serdecznie do kontaktu oraz spotkania!
Anastazja Skalska, tel. 667 715 222

 

Lokalizacja nieruchomości

Kalkulatory

Kalkulator kredytowy

Wysokość raty

PLN
%

Kalkulator kosztów

Podatek od czynności cywilno-prawnych

Taksa notarialna
(opłata notarialna)

Wniosek o wpis do KW

VAT od prowizji
agencji nieruchomości

VAT od taksy notarialnej
(opłaty notarialnej)

Prowizja agencji nieruchomości

Wypisy aktu notarialnego

Razem

Uwaga: mogą wystąpić dodatkowe opłaty za założenie księgi wieczystej oraz ustanowienie hipoteki.

PLN
PLN
PLN
PLN
PLN
PLN
%
PLN

Manager

Proszę wprowadzić poprawne imię i nazwisko
Proszę wprowadzić poprawny numer telefonu
Proszę wprowadzić poprawny adres e-mail
Proszę zaznaczyć wymagane zgody
Rozwiąż równanie:
15 6
Niepoprawny wynik